• Detached thatched property
• Desirable village location
• Ideal development opportunity
• Freehold with vacant possession
FOR SALE BY ONLINE AUCTION ENDING 18th AUGUST 2023 UNLESS SOLD PRIOR-OFFERS INVITED
An opportunity to acquire a thatched rendered property with existing single storey extensions, occupying a wonderful position in the very desirable village of Heydon. The property requires full refurbishment and planning permission has been approved for a re-ordering and extension of the accommodation.
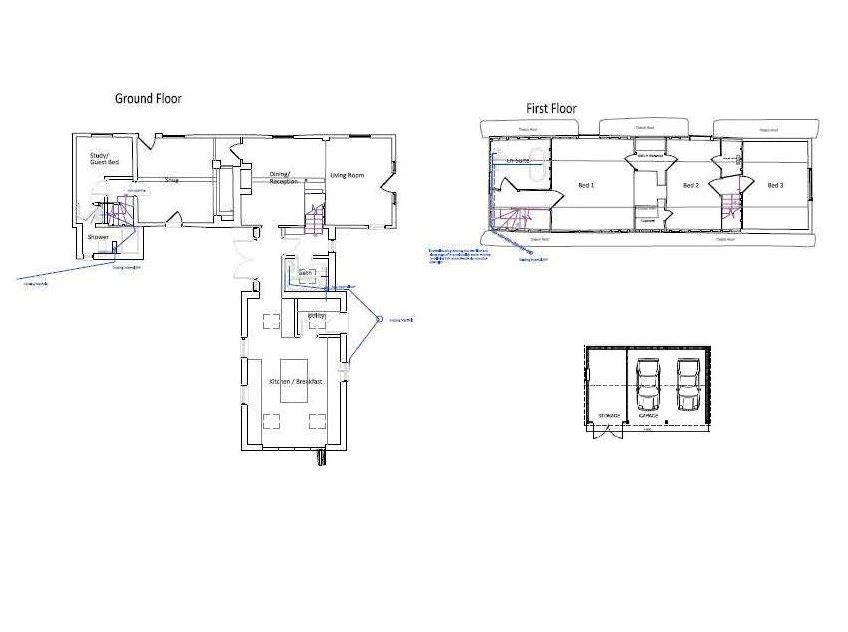
The approved planning scheme 23/01284/FUL (listed building consent 23/01278/LBC), gives permission to remove the small existing side extensions and replace with a more substantial and stylish single storey garden extension with plain tile roof. The application approves the following accommodation:
Ground Floor: Entrance Hall; Living Room; Dining/Reception Room; Snug; Study/Guest Bedroom; Shower Room; Utility Room; Kitchen/Breakfast Room.
First Floor: Bedroom 1 with en-suite; Bedroom 2; Bedroom 3.
Internally, the proposed property measures 1,588 sq ft (plus an additional 155 sq ft below 1.5m high).
Outside: The property has a private access to the south of the building which leads to off road parking and a detached triple cart lodge. The gardens are predominantly to the east and west of the accommodation.
The property offers buyers a wonderful chance to create a desirable and stylish dwelling in a highly desirable location.
EPC rating: E
Residential
Freehold with vacant possession
Cheffins Property Auction Dept 01223 213777
Planning permission and Listed Building Consent were granted on 1st June 2023 for the change of use of the Grade II listed cottage back to a single dwelling and the replacement of modern rear extensions with a rear single storey link and the erection of a carport building.
The village of Heydon lies approximately 4.5miles to the north east of Royston and approximately 11 miles south west of Cambridge. The village has a pub and golf club and is a popular spot for walkers and cyclists alike.
Heading south on Chishill Road, go past the pub, and Highway Cottage is then on the left after approx 150 yds.
What3words//goodness.onlookers.obscuring
www.cheffins.co.uk/auctions/property-auctions or Foskett Marr Gadsby & Head 181 High Street, Epping, Essex, CM16 4BQ
* Generally speaking Guide Prices are provided as an indication of each seller's minimum expectation, i.e. 'The Reserve'. They are not necessarily figures which a property will sell for and may change at any time prior to the auction. Virtually every property will be offered subject to a Reserve (a figure below which the Auctioneer cannot sell the property during the auction) which we expect will be set within the Guide Range or no more than 10% above a single figure Guide.
Submit an enquiry and someone will be in contact shortly.
By setting a proxy bid, the system will automatically bid on your behalf to maintain your position as the highest bidder, up to your proxy bid amount. If you are outbid, you will be notified via email so you can opt to increase your bid if you so choose.
If two of more users place identical bids, the bid that was placed first takes precedence, and this includes proxy bids.
Another bidder placed an automatic proxy bid greater or equal to the bid you have just placed. You will need to bid again to stand a chance of winning.